Инсталляция Jacob Delafon для унитаза, ширина 300 мм, без клавиши смыва (E33130RU-NF)
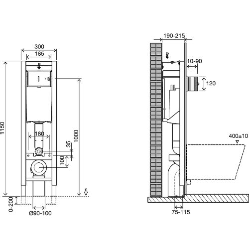
Инсталляция Jacob Delafon E33130RU-NF — это надежная скрытая система для монтажа подвесного унитаза. Модель с шириной 300 мм создает аккуратную и современную компоновку санузла, экономя пространство. Производство расположено во Франции, что гарантирует европейское качество и долговечность конструкции.
Прочная рама из стали с антикоррозионным покрытием рассчитана на значительные нагрузки. Высота системы составляет 115 см, а глубина — 21.5 см, что позволяет легко интегрировать ее в стандартные ниши. Регулируемые ножки обеспечивают точную установку по уровню с возможностью компенсации неровностей пола.
Управление смывом механическое, с двумя кнопками, которые обеспечивают экономный расход воды — 3 или 6 литров. Это помогает сократить коммунальные платежи без потери эффективности. В комплектацию входит скрытый бачок, а сама инсталляция поставляется без лицевой панели и клавиши смыва, что позволяет индивидуально подобрать дизайн.
Основные преимущества модели:
- Компактные габариты для скрытого монтажа.
- Двойной режим слива для экономии воды.
- Усиленная стальная рама с защитой от ржавчины.
- Регулируемые опоры для простой установки.
Бренд Jacob Delafon предоставляет официальную гарантию 10 лет на данную инсталляцию. Мы осуществляем доставку во все регионы и предлагаем услуги профессионального монтажа.







































































































































































































































































































































